全自動機器上袋氧化鋁噸袋包裝機

近幾年全球的氧化鋁產量增量主要來自于中國,中國產量目前占比超 50%。中國的氧化鋁產地主要分布在鋁土礦資源地山西、河南、廣西和靠近港口、交通便利的山東。據統計,截至 2020 年 3 月,全國氧化鋁總產能為 7713 萬噸,同比增長 8.7%,開工產能 7071萬噸,同比增長 24.7%。
棗莊市三維技術有限公司,依托全自動小袋包裝機成功穩定案例,通過專業技術人員不斷研發、測試。于2019年設計出國內領先的全自動機器上袋氧化鋁包裝機。全自動機器上袋氧化鋁噸袋包裝機由于節省了工人套袋時間,并且采用先進的稱重技術。包裝速度是傳統氧化鋁噸袋包裝機的3倍以上。可以更快、更好、更精確的完成生產任務。
全自動氧化鋁噸袋包裝機,也叫全自動氧化鋁大袋包裝機、全自動氧化鋁噸袋包裝秤、全自動氧化鋁大袋包裝秤,是一種全自動噸袋包裝設備,全自動氧化鋁噸袋包裝機克服了氧化鋁噸袋包裝機(噸袋包裝秤、大袋包裝機、大袋包裝秤)需要人工上袋(掛袋)的缺點,實現了噸袋的自動上袋、物料自動稱量、自動灌袋、自動輸送、自動熱合封口、自動噴碼打印相關生產信息。
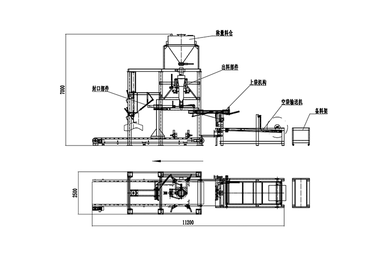
全自動機器上袋氧化鋁噸袋包裝機主要機構:氧化鋁空袋輸送機構、自動上袋機構、氧化鋁自動稱量機構、氧化鋁自動灌裝機構、自動熱合封口、自動噴碼打印、氧化鋁自動輸送機構。簡略圖紙如下:

全自動機器上袋氧化鋁噸袋包裝機功能:
1、氧化鋁噸包袋自動輸送。噸袋廠家制作2吊環柔性噸包袋。大約150個噸袋為一卷。叉車把成卷噸包袋放入空袋輸送機構。2吊環柔性噸包袋已在國外大量使用。采購成本基本與目前國內同等質量的4吊環包裝機持平。
2、氧化鋁噸袋自動上袋機構、噸包袋自動升降、自動充氣漲袋。
3、氧化鋁自動灌裝。(可根據客戶需求設置灌裝重量)
4、氧化鋁噸包袋空氣排出。
5、氧化鋁噸袋袋口自動熱合封口。
6、氧化鋁噸袋成品輸送。
7、生產日期、批號等信息自動打印。
8、氧化鋁噸包袋袋口自動整理、噸包袋袋口系帶調整。以便叉車或者行車起吊碼垛、裝車。
全自動機器上袋氧化鋁噸袋包裝機選購指南:
1、確認物料特性
2、確定安裝位置和空間尺寸
3、對于粉體物料,需要配置除塵系統
4、全自動機器上袋純氧化鋁噸袋包裝機的包裝精度和包裝速度的約定
5、后續碼垛系統對全自動噸袋包裝機的系帶位置高度、方向的要求和限定
6、如需防爆,需要確定防爆等級
7、確定設備耗氣量。
8、根據物料比重和物料性能確定包裝袋尺寸。
棗莊市三維技術有限公司成立于1996年,專注于稱重、包裝、控制設備的生產、銷售。棗莊市三維技術有限公司是國家認定的高新技術企業,公司已通過ISO9001質量管理體系認證和ISO14001環境管理體系認證,公司具有計量器具制造許可證書,已獲得多項國家專利。公司主要產品:全自動包裝秤、碼垛機、自動配料系統等。廣泛應用于糧油、食品、飲料、醫藥、化工、肥料、水泥、玻璃、摩擦材料、耐火材料、鋼鐵、建材、環保等眾多行業。
隨著公司生產的全自動噸袋包裝機在山東魯西化工客戶工廠中即將啟動運行,標志著國內先進的全自動噸袋包裝機完成投料試機成功。
- 上一篇:全自動包裝機的主要特點
- 下一篇:糊精全自動包裝設備選型說明









??魯公網安備 ?37040202006018號